Home Design One Floor
of course, for those of you who want to make a home should be a good contribution for you personally as a designer, but also your family or relatives who also agreed String together the concept of the house and was intrigued by the concept and model of the home that you create. This review will discuss the concept of time home with the type 15 with the theme and minimalist but still comfortable.
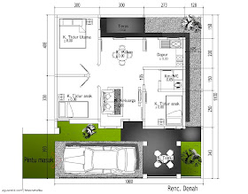
design a house on a minimalist design of the house, but take into account the aspect of comfort and quality of construction. is not too broad, consisting of a garage in the front, living room, family room, 3 bedrooms, a kitchen in the living room, 2 bathrooms.
indeed there are two concept models of buildings with the same concept but added and modified slightly in order for the designers and lovers of decoration as you may consider. in plan 2 is added to the place of worship for those who will worship or prayer could use the space. concept room that was deliberately built to show the impression of a minimalist so impressed as comfortable and can be used as a means of gathering the family. is not too big but still gives the impression swetty home. may be useful.
design a house on a minimalist design of the house, but take into account the aspect of comfort and quality of construction. is not too broad, consisting of a garage in the front, living room, family room, 3 bedrooms, a kitchen in the living room, 2 bathrooms.
indeed there are two concept models of buildings with the same concept but added and modified slightly in order for the designers and lovers of decoration as you may consider. in plan 2 is added to the place of worship for those who will worship or prayer could use the space. concept room that was deliberately built to show the impression of a minimalist so impressed as comfortable and can be used as a means of gathering the family. is not too big but still gives the impression swetty home. may be useful.


No Comment for "Home Design One Floor"
Post a Comment